0,27 €
0,22 €
0,26 €
0,21 €
Carrinho de translação 89x100 mm para carril 6V.089 de portão deslizante 8 rolos de aço
product unavailable
adicionar à lista de desejos
Descrição
Carrinho de rolamento oscilante com 8 rolos para portão deslizante – rolos de aço
Carrinho de rolamento oscilante com 8 rolos é um elemento guia robusto para portões deslizantes em calha, compatível com a calha 6V.089. A construção central de múltiplas placas garante maior capacidade de carga e estabilidade de funcionamento, enquanto os rolos de aço asseguram um deslizamento suave da folha do portão ao longo de muitos anos de utilização.

Características principais do produto
- Tipo: carrinho de rolamento oscilante
- Número de rolos: 8
- Material dos rolos: aço
- Compatibilidade: calha 6V.089
- Construção: múltiplas placas (resistência aumentada)
- Base de montagem com furos: 4× M16
- Peso: 11,3 kg
- Altura (H): 169 mm

Durabilidade e fiabilidade a longo prazo
O carrinho distingue-se pela elevada resistência a danos mecânicos e a cargas dinâmicas. O elemento central de múltiplas placas reduz as deformações sob grande pressão, o que se traduz num guiamento estável mesmo de folhas de portão de grande peso. Os rolos de aço montados em rolamentos garantem um funcionamento silencioso e suave, minimizando a resistência ao rolamento e reduzindo a necessidade de manutenção. A construção oscilante compensa eventuais desvios axiais da calha, protegendo os rolos de um desgaste irregular.


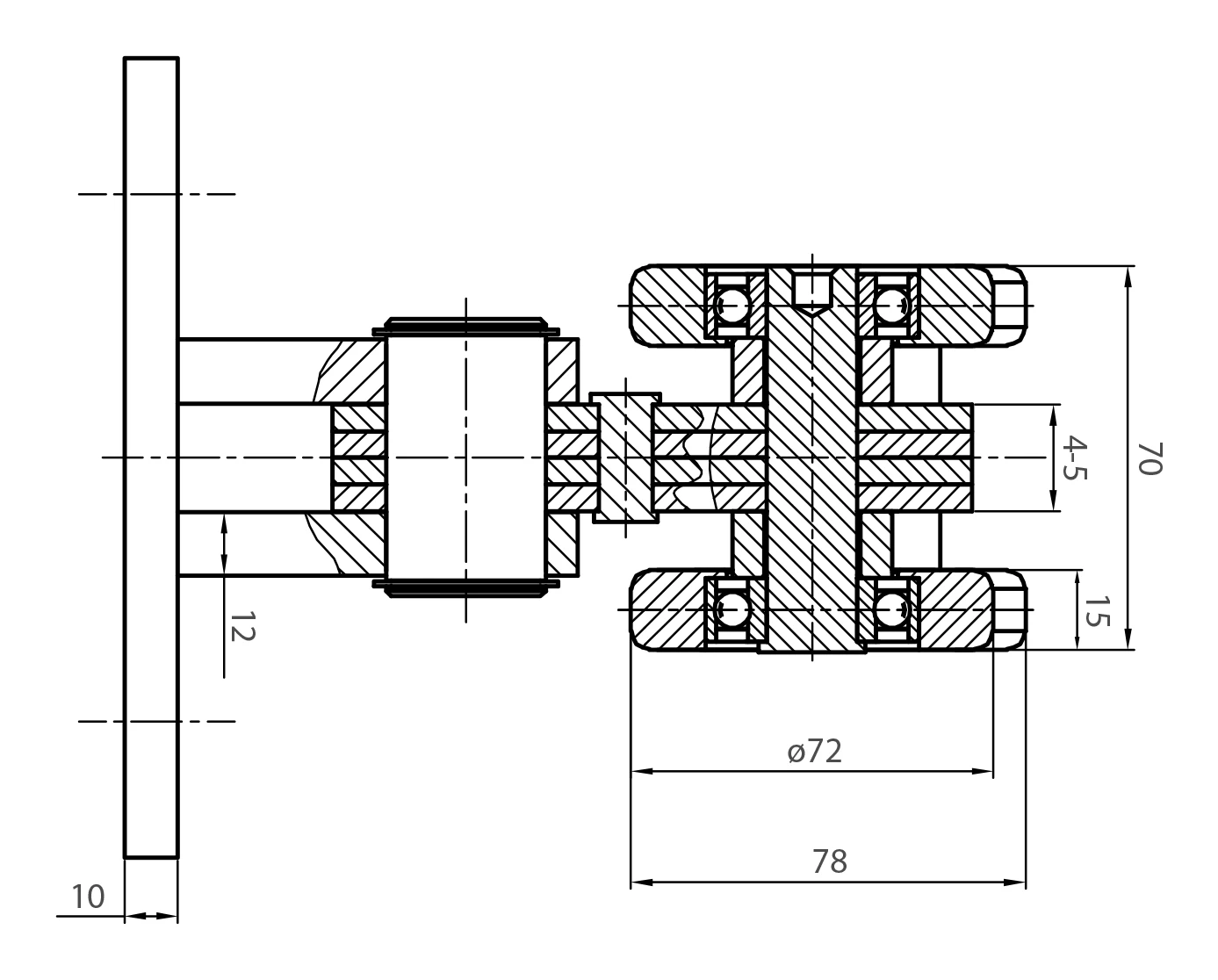
Dimensões gerais

O desenho técnico apresenta as dimensões principais do carrinho, que permitem planear com precisão a montagem na caixa do portão:
- Dimensões da placa de base: 150 × 300 mm
- Espaçamento dos furos de montagem: 100 × 250 mm
- Furos de montagem: 4× M16
- Distância dos furos à aresta: 35 mm
- Largura total com rolos: 171 mm
- Altura total (vista lateral): 298 mm
- Afastamento do eixo dos rolos à aresta da base: 75 mm

Parâmetros dos rolos e do corte transversal
- Diâmetro do rolo: ø72 mm
- Largura do rolo: 78 mm
- Altura do conjunto do rolo: 70 mm
- Folga de guiamento da calha: 4–5 mm
- Espessura da placa de base: 10 mm
- Diâmetro do rolamento: 12 mm
- Folga inferior: 15 mm
- Volume: 5243,44 cm³
- EAN: 5903313200240
O carrinho constitui um subconjunto pronto a montar que, após fixação à estrutura do portão com quatro parafusos M16, fica imediatamente operacional. Graças à sólida construção em aço e aos rolamentos executados com precisão, o produto garante uma exploração duradoura e sem avarias mesmo em portões industriais de utilização intensiva.
Ładowanie tabeli porównawczej...
Ładowanie galerii...
Dados técnicos
| Tipo de produto | Carro individual |
| Material dos rolos | Aço |
| Número de rolos [szt.] | 8 |
| Construção do carro | Giratória |
| Tamanho do trilho | 100x89x5 |
| Tipo de sistema de rolamento | Sistema de rodízios |
Segurança (GPSR)
Todas as revisões (positivas e negativas) são exibidas, de acordo com a limitação do número da plataforma. Verificamos que provêm de clientes que adquiriram o produto. Veja mais sobre as nossas políticas de comentários página.